
Стоманената конструкция улуците са решаващ компонент на канализационната система за отводняване на покрива на сградата. Основната им функция е да събират дъждовна вода от покрива, да я насочат към вертикални тръби и след това да я изхвърлят към отворената система на открито, като не я пречат директно да ерозира стените или да накисва основите. Дизайнът и инсталирането на продукта на Liweiyuan се характеризират с висока якост и леко тегло, като гарантират гладко дренаж и изключителна издръжливост.
Стоманената конструкция улуците са решаващ компонент на канализационната система за отводняване на покрива на сградата. Основната им функция е да събират дъждовна вода от покрива, да я насочат към вертикални тръби и след това да я изхвърлят към отворената система на открито, като не я пречат директно да ерозира стените или да накисва основите. Дизайнът и инсталирането на продукта на Liweiyuan се характеризират с висока якост и леко тегло, като гарантират гладко дренаж и изключителна издръжливост.
Стоманената конструкция на Liweiyuan е изработена от устойчиви на корозия и устойчиви на удара материали.
Нашият продукт е поцинковано с горещо, предлагайки отлична устойчивост на корозия, ниска цена и дълъг експлоатационен живот. Предлага се с дебелина 1,5-2,5 мм, той е подходящ за повечето приложения.
Изработен от неръждаема стомана, този продукт предлага устойчивост на корозия и е особено подходящ за крайбрежна или влажна среда. Предлага се с дебелина 1,0-2,0 мм, той предлага по-висока цена, но дълъг експлоатационен живот.
Нашите цветно покрити стоманени продукти са базирани на поцинкована стомана, покрита с устойчиво на атмосферни влияния покритие, като полиестер или флуоровъглерод, както за устойчивост на корозия, така и за декоративни ефекти. Предлагат се в дебелина 1,2-2,0 мм, те са подходящи за сгради, изискващи високо ниво на естетическа привлекателност.
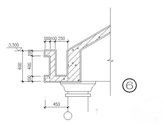
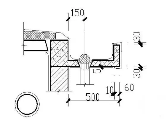
Структурната форма на стоманената конструкция трябва да бъде адаптирана към наклона на покрива и дизайна на стрехите. Общите видове включват U-образна и V-образна. Процесът на инсталиране е следният:
Нашите улуци от стоманена конструкция използват ъглови стоманени скоби за улуци, за да ги закрепят към гредите на стрехите от стоманената конструкция или перлините. Разстоянието на скобите е 600-1000 мм, за да се осигури равномерно разпределение на напрежението в улука.
Готовите улуци са предварително размери и свързани на място, използвайки конектори или заваряване. На кръстовището се изисква уплътнител между улука и настилката на покрива.
Можем да инсталираме мигащ над настилката на покрива. Долният край на улука трябва да бъде поставен под настилката на покрива и запечатан с уплътнител. В долната част на улука трябва да се осигурят отвори за източване, предимно за връзка с щранг на дъждовната вода.
Процесът на производството на улуци от стоманена конструкция включва рязане според размерите на рисунката, огъването, рисуването, проверката на готовия продукт, опаковката и доставката. Стоманената конструкция на Liweiyuan са проектирани и инсталирани, за да се гарантира устойчивост на корозия, гладко отводняване и издръжливост, като се гарантира ефективен дренаж.